
Ngôi nhà Horinouchi này nằm ở Suginami, Tokyo, Nhật Bản do kiến trúc sư Kota Mizuishi thiết kế. Đây là ngôi nhà 2 tầng của một gia đình có 3 thành viên.

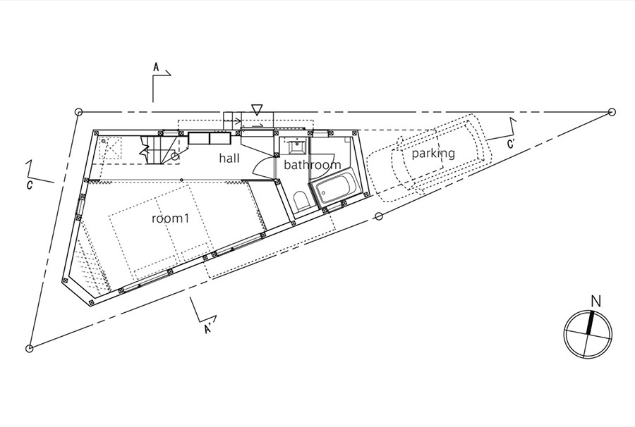
Nằm trên khu đất hình tam giác giữa một con kênh và con đường nhỏ, tuy vậy ngôi nhà vừa đáp ứng nhu cầu sinh hoạt của gia đình vừa phù hợp với các quy định về xây dựng của địa phương.

Ngôi nhà có hình dáng bên ngoài lạ thường vì những quy định về xây dựng. Một phần diện tích đất thuộc góc nhọn tam giác đã bị hạn chế xây dựng. Sàn của tầng hai được thiết kế nhô ra theo kiểu công xôn.

Thiết kế này càng nổi bật khi phần mái được bao phủ bởi những tấm kim loại màu nâu. Trong khi đó, các khung cửa sổ hình chữ nhật được thiết kế nhô ra khỏi bề mặt tường.

Theo bố trí của kiến trúc sư, ngôi nhà có một phòng ngủ ở tầng trệt. Các không gian sinh hoạt chung được đưa lên tầng 2. Hai bên tường tầng 2 là các cửa sổ dài. Nhà bếp được bố trí ở đầu phía Tây. Tất cả không gian được thừa hưởng trần nhà cao gấp đôi bình thường.





Có một gác xếp nhỏ ở tầng 2, nơi đây đóng vai trò như một không gian đa chức năng với ánh sáng tự nhiên ngập tràn.

Mặc dù tổng diện tích sàn chỉ 55m2 nhưng ngôi nhà này mang lại một không gian sống rộng rãi, cảm giác không gian thoáng đãng từ chiều ngang lẫn chiều dọc.

Quang Đăng (dịch)